The "Roddy" Difference
Most draftsmen draw lines. We draw structures. Our construction plans are created by a carpenter who knows how you actually build.
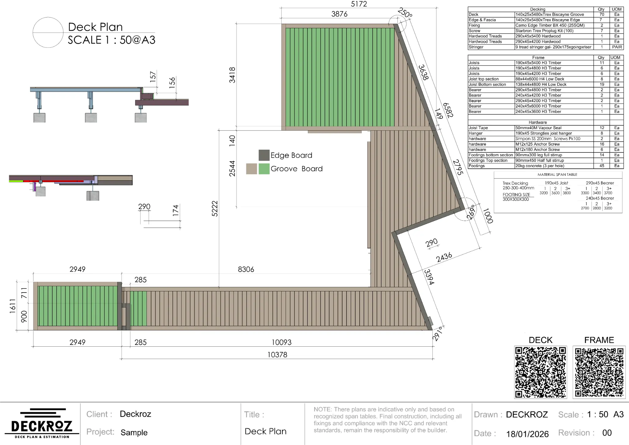
We include span-table driven layouts for joists and bearers, footing locations, and a complete Bill of Quantities so you can order with confidence.
- 3D Deck & Framing development
- Span-table driven layouts
- Colour-coded drawings for clarity
- Interactive 3D Model via QR Code

Technical Documentation

View Plan

View Plan

View Plan

View Plan
